Regeldetails
Die nachfolgend dargestellten Anschlussdetails wurden als Planungshilfe unter den Gesichtspunkten des Wetterschutzes und der Praxistauglichkeit entwickelt. Allen Detailzeichnungen liegt das Funktionsprinzip der zweischaligen Wand mit der Funktionstrennung der Schalen und des Schalenzwischenraums zu Grunde.
Architekt und Bauunternehmer tragen eine große Verantwortung, die Konstruktion an die jeweilige Situation anzupassen. Die Zeichnungen sollen die Konstruktionsprinzipien verdeutlichen, um eine objektspezifische und den Anforderungen entsprechende Lösung zu finden. Neben einer normgerechten Lösung ist vor allem eine funktionstaugliche und ästhetisch überzeugende Lösung gefragt. Das zweischalige Mauerwerk ist eine äußerst robuste Konstruktion, die hohe Anforderungen erfüllt. Die Konstruktion ist in der europäischen Mauerwerksnorm DIN EN 1996 (EC 6) geregelt (ehemals DIN 1053).
Hinweis: Die gezeigten Anschluss-Situationen und der dazugehörige Erläuterungsteil sind bei Verwendung in jedem Einzelfall objektbezogen und eigenverantwortlich zu überprüfen.
Decke zu unbeheiztem Keller, innenseitig gedämmt – mit Kimmstein
zum Detail
Decke zu unbeheiztem Keller, innenseitig gedämmt – ohne Kimmstein, Entwässerung oberhalb des Erdreichs
Mit Streifenfundament, außenseitig gedämmt, Streifenfundament seitlich nicht gedämmt – mit Kimmstein
zum Detail
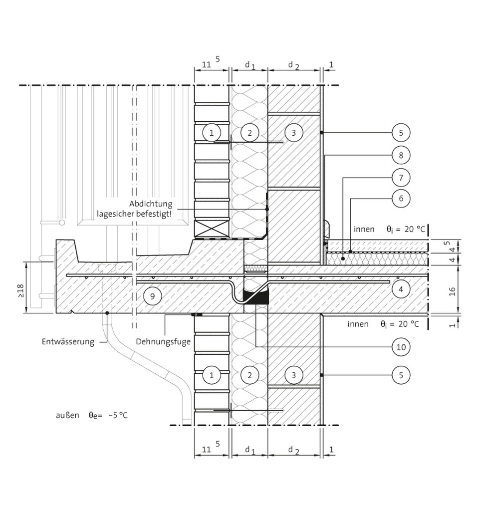
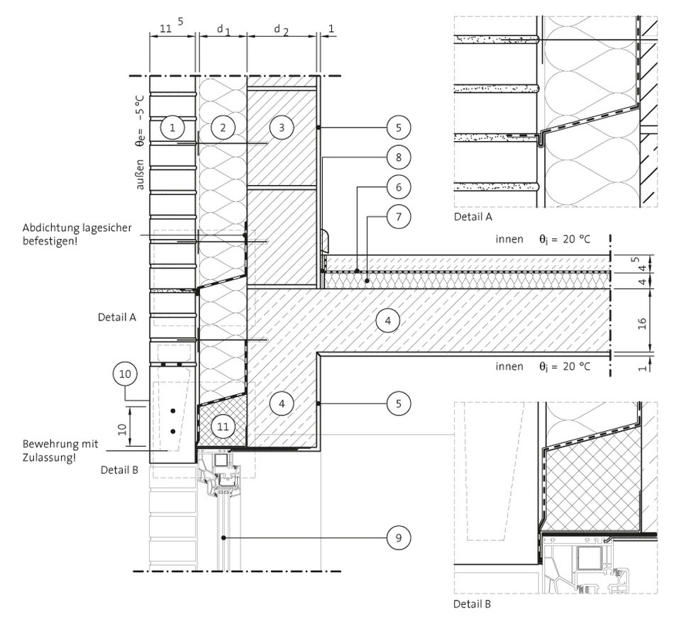
Balkonanschluss, Balkonplatte – Wandebene
zum Detail
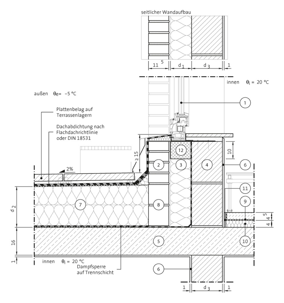
Loggien, Erker, Terrassen, Durchfahrten – an Wand
zum Detail
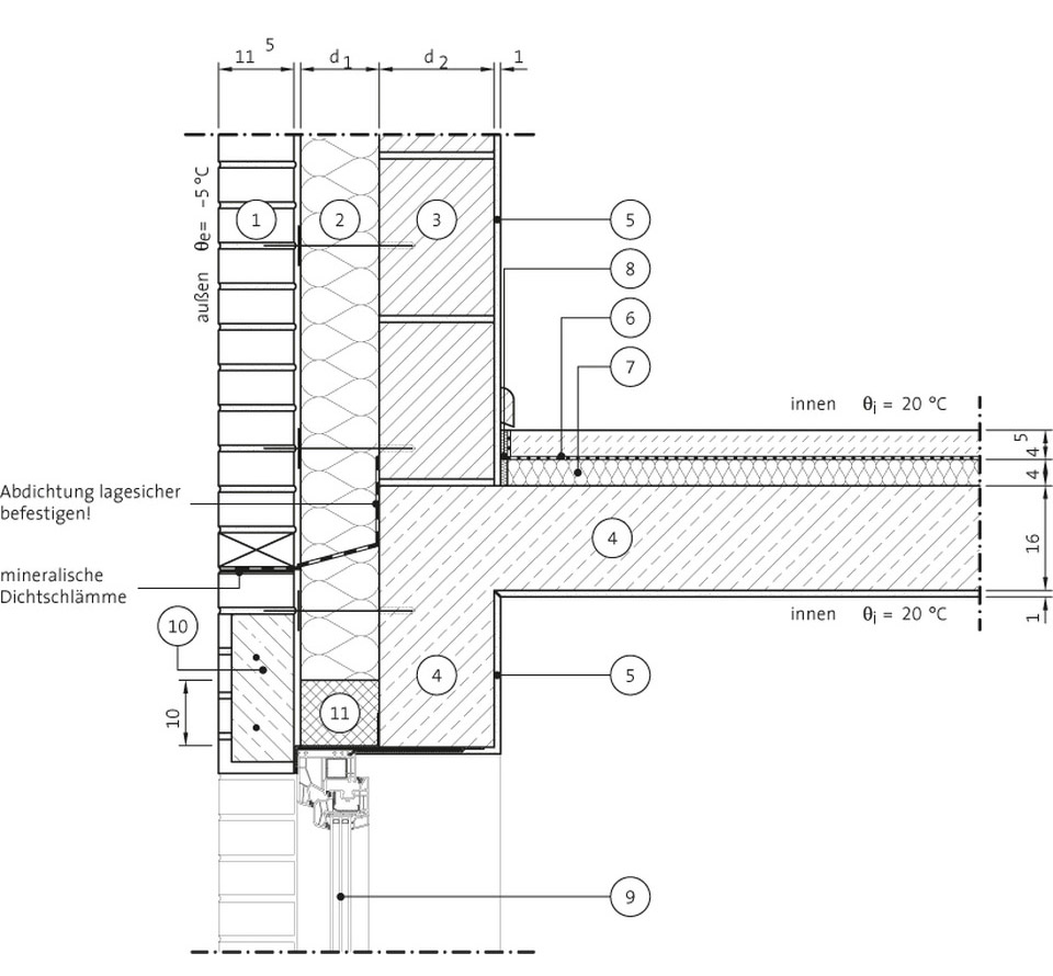
A und B: Loggien, Erker, Terrassen, Durchfahrten – unten Geschossdecke – Wandebene ohne Fenster/Tür
zum Detail
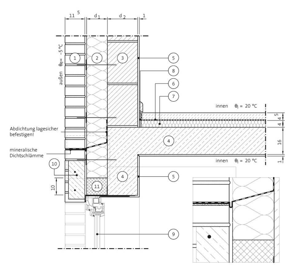
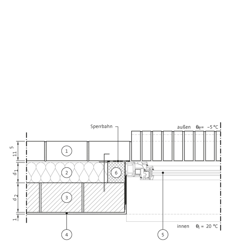
Loggien, Erker, Terrassen, Durchfahrten Anschluss unten Geschossdecke – Fenster/Tür in Dämmebene
Fenster/Tür – Fertigsturz, breites Fenster
Fenster/Tür – Fertigsturz, schmales Fenster
Fenster/Tür – gemauerter Sturz
zum Detail
Fenster-/Türbrüstung – Sohlbank Fertigteil
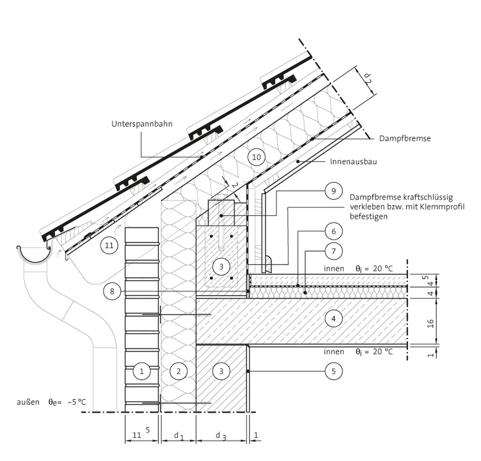
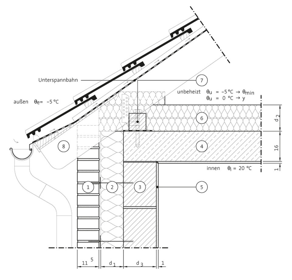
Ortganganschluss – Zwischensparrendämmung aufgehende Wand
Attikaanschluss – Dach nicht begehbar
zum Detail
Attikaanschluss – Dach begehbar
zum Detail






















